2021-03-12 14:41:36 来源:合房网独家
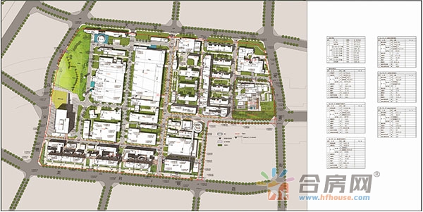
合房网(合肥房地产交易网)讯 据合肥市自然资源与规划局消息,合柴记忆文创园项目规划正式公示。据公示文件显示项目S5-09-02商住地块主打6F多层产品,另外S5-09-03商住地块打造33层高层项目。








该项目位于包河区天堂寨路以南、常青街以西、白马尖路以东、龙井峡路以北, 究,拟同意合柴记忆文创园项目规划及建筑设计方案,主要指标如下:
S5-09-01 (E地块):用地面积123056. 28平方米;用地性质文化设施用地(A2);总建筑面积145756㎡;容积率0.95;建筑密度43. 05%;绿地率30%;机动车停车位1031个;
S5-09-02 (FT地块):用地面积19661. 26平方米;用地性质商住混合用地(BR);总建筑面积46018. 61m2;容积率1.32;建筑密度34. 90%;绿地率20%;机动车停车位:412个;
S5-09-03 (F-2地块):用地面积25091.95平方米;用地性质商住混合用地(BR);总建筑面积7403L 44m2;容积率1.75;建筑密度42. 69%;绿地率20%;机动车停车位657个;
S5-09-06 (G地块):用地面积8134. 44平方米;用地性质服务设施用地(R22);总建筑面积18134㎡;容积率L0;建筑密度33. 94%;绿地率30%;机动车停车位128个;
S5-09-05 (H地块):用地面积9171. 08平方米;用地性质教育设施用地(A33);总建筑面积7625. 98㎡;容积率0.83;建筑密度30%;绿地率35. 29%;机动车停车位26个。
2019年滨投以成交单价492万元/亩竞得包河区S1908号地块,AB住宅楼面价4099.98元/㎡,CD住宅楼面价3689.98元/㎡,总价210449.41万元,溢价率0.41%。
土拍刚刚落下帷幕,滨投的官宣便翩跹而来。该地块定为合柴1972文化创意产业园区,将打造集文化、艺术、科技于一体的多元文化创意产业园区。
了解更多楼市信息
发表