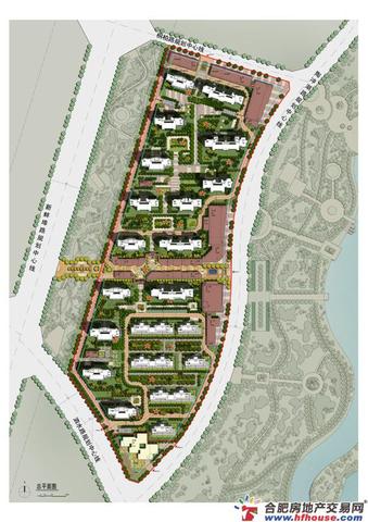
• 总平面图 1/3
  • 商业效果图 2/3
  • 鸟瞰图 3/3
  • 1/
  • 效果图